欢迎访问好房东! 网站首页
至德科创·天津智能网联汽车产业园
编号:51099
区域:天津- 滨海新区
类别:厂房出售
占地面积:46000平米
价格:面议
建筑面积:32000平米
车间面积:
办公面积:
柱网跨度:
层高:
现配电容量:300KVA
分割面积:
地址:

    天津市滨海新区碧波东街与瑶山路交口

详情概况

天津市自由行汽车科技有限公司成立于2024年3月,是至德资产下属全资子公司。是一家专注于智能网联汽车产业园建设的园区建设运营服务商。

公司拥有一支高素质的园区建设运营团队,成员不仅在国内产业投资,园区运营管理、金融、资产管理等领域拥有丰富的实践经验,而且对市场趋势、行业发展和风险管理有着深刻的理解和独到的见解。他们中的很多人曾在国内外的知名产业投资集团、金融机构、投资银行、基金公司等工作多年,积累了丰富的产业投资、金融资源和人脉网络 。

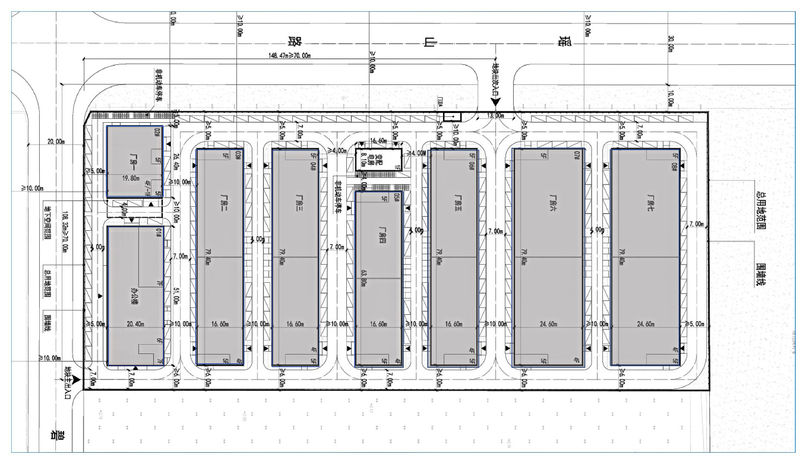
【项目名称】:至德科创·天津智能网联汽车产业园

【位 置】:项目位于天津市滨海新区碧波东街与瑶山路交口

【出 售 面 积】:标准户型548㎡,稀缺户型1300㎡(优质纳税企业可定制)

【招 商 业 态】:高端装备制造业,汽车零部件、低空产业、新能源、新材料、电子信息,精密仪器仪表制造产业等

【楼 层】:共计四层,可分层销售

【 层 高】:7.8/4.5/4.2/4.2

【载 重】:2t/0.8/0.5/0.5

【价 格】:报价5000元/平米

【周 边 配 套】:10分钟可达商业中心,小区,医院等

【付 款 方 式】:贷款、全款、分期


实景照片