欢迎访问好房东! 网站首页
天津宝坻正规厂房出租
编号:50592
区域:天津- 宝坻
类别:厂房出租
占地面积:20000平米
价格:面议
建筑面积:12500平米
车间面积:12500平米
办公面积:500平米
柱网跨度:7.8米
层高:10.5米
现配电容量:250KVA
分割面积:
  • 4500㎡
  • 4000㎡
  • 4000㎡
地址:

    宝坻经济开发区

徐女士: 查看房东电话
详情概况

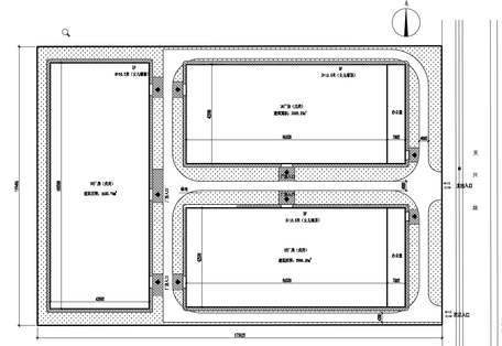
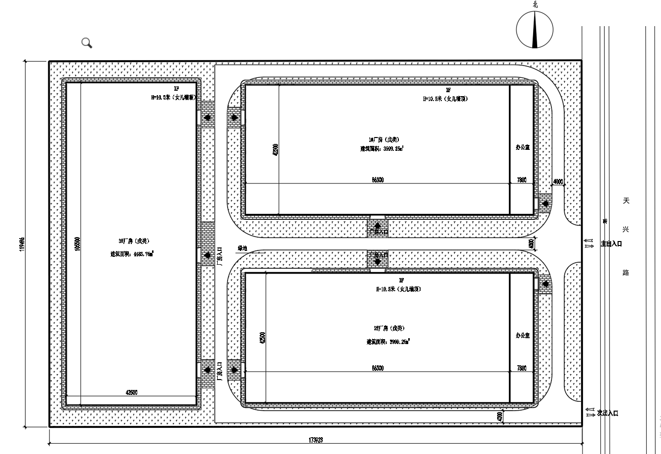
  厂房占地总面积约30亩,是独立的小院,包含3个独立的厂房车间。其中1#车间面积约4000平米、2#车间面积约4000平米、3#车间面积约4500平米,能充分满足不同企业多样化的生产需求,可分割或整体出租,建筑层数地上1层和建筑高度10.5米(屋顶女儿墙到室外地面高度)。1#和2#楼端部布置有办公室,厂房无行吊,竣工时间2020年。

厂房详情

1、空间布局:三个车间各自独立又相互呼应,可根据您的生产流程进行灵活规划和组合。每个车间内部空间开阔,无过多立柱遮挡,便于大型设备的安装和布局,有效提高空间利用率。

2、建筑结构:采用坚固耐用的钢结构设计,具有良好的抗震性和稳定性,能为您的生产活动提供安全可靠的环境。

3、配套设施:水电路全面三通,电力供应充足,配备[250]kv的变压器,可满足高负荷生产用电需求;完善的供水系统,保障生产和生活用水;宽敞的道路规划(4米宽),方便大型货车进出运输货物。

4、整个厂区安装了16个彩色摄像头,无死角,24小时监控,可手机远程监控,确保安全生产。

5、厂房位于宝坻经济开发区距离最近的京沈高速路口宝坻出口仅3公里,无论是原材料的运输还是成品的配送,都能快速高效地完成,大大降低物流成本。

本厂房适用于多种行业,如机械加工、电子制造、金属制品、仓储等,只要您有生产需求,我们都能为您提供理想的生产空间。



实景照片